Detaljno
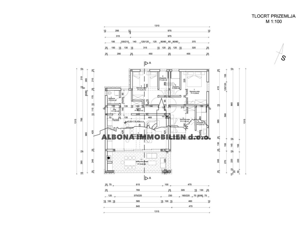
- Površina: 122 m2
- Spavaće sobe: 3
- Godina gradnje: 2021
- ID nekretnine: ID24022021B
- Ime: ALBONA IMMOBILIEN d.o.o.
- Telefon: 099/366 1166
- Tip: Kuća
- Status: Prodaja
- Lokacija: Rabac - Labin
- Površina parcele: 881 m2
- Kupaone: 4
Opis
U malom mjestu kraj Labina po nazivu Ravni, poznatom po turizmu, nalazi se zemljište sa započetom gradnjom.
Zemljište je površine 880m2 i započeta je gradnja jednokatnice sa bazenom površine 122m2. Plaćene su komunalije, postavljeni priključci struje i vode te budući vlasnik može samo nastaviti sa gradnjom.
Kuća se sastoji od hodnika, kuhinje sa dnevnim boravkom, 3 spavaće sobe sa vlastitom kupaonom, dodatnim wc-om i terase koja ima pogled na bazen. Bazen je površine 32m2.
Trgovina, kafić i restoran nalaze se 2 km udaljeno od zemljišta.
Sa kuće se pruža pogled na Kvarner i otoke.
Galerija:
Adresa
- Lokacija: Rabac - Labin













